Baustatik – Tragwerksplanung – Ausführung – Bauüberwachung – Bestandsprüfung

Einfamilienhäuser (EFH)
Mehrfamilienhäuser (MFH)
Hotels & Beherbergungsbetriebe
Gewerbebauten
Sonderbauten
Tiefgaragen & Untergeschosse
Anbauten & Aufstockungen im Neubaukontext

Erweiterung bestehender Tragwerke
Sanierung alter Deckenaufbauten
Ertüchtigung für moderne Haustechnik
Integration neuer Öffnungen
Statische Begleitung energetischer Maßnahmen
Modernisierung von Treppenhäusern
Statische Bewertung von Anbauten

Hallenbauten
Gewerbebauten
Anbauten & Aufstockungen
Dach- und Fassadenkonstruktionen
Balkone & Außentreppen
Sonderkonstruktionen

Holztragwerke für überdachte Außenbereiche
Holzbau für kleine Infrastrukturprojekte
Holztragwerke für Dachgauben
Das Wohnhaus wird umfassend modernisiert und um eine harmonisch integrierte Einliegerwohnung erweitert. Ein besonderes Highlight bildet die neue, lichtdurchflutete Schwimmhalle, die dem Gebäude exklusiven Wohnkomfort verleiht. Ergänzend entsteht eine moderne Garage, die architektonisch und technisch perfekt auf das Gesamtkonzept abgestimmt ist.
Architektenbüro :
Dipl. Architekt (FH) Heinz Keul
In Altrip (Rhein‑Pfalz‑Kreis) entsteht ein kompaktes Wochenendhaus mit den Abmessungen 5 × 10 × 4 m. Die Außenwände werden in massivem Mauerziegelmauerwerk ausgeführt. Das Gebäude erhält ein Satteldach, ausgesteift durch einen umlaufenden Ringbalken. Die Gründung erfolgt über eine Bodenplatte mit umlaufender Frostschürze.
Architektenbüro :
Planmichel Planungsgesellschaft mbH
Nachrüstung einer Photovoltaikanlage auf dem Dach eines bestehenden Einfamilienhauses in Holztafelbauweise. Das Gebäude weist rechteckige Grundrissabmessungen von etwa 11,50 m × 11,85 m auf. Die Firsthöhe beträgt ca. 9,00 m. Die Dachkonstruktion ist als kreuzweise ausgebildetes Satteldach ausgeführt.
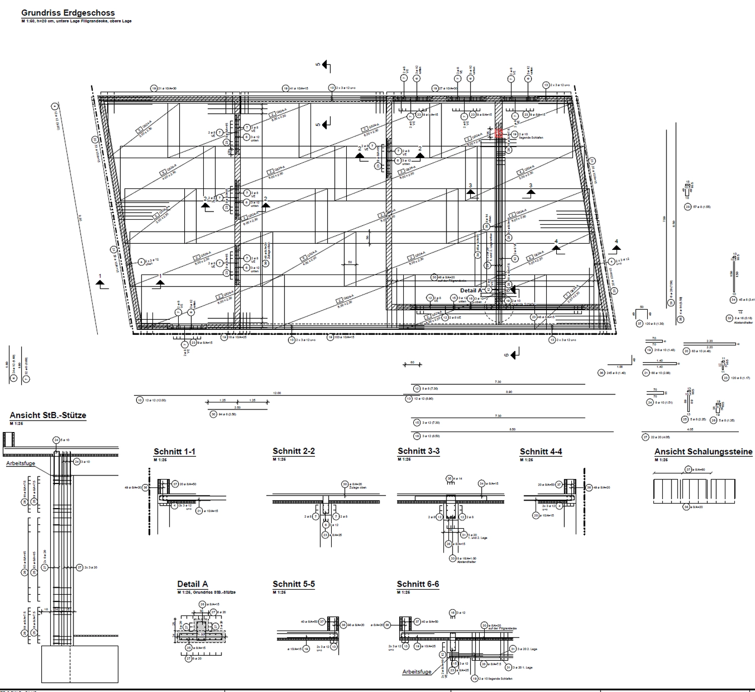
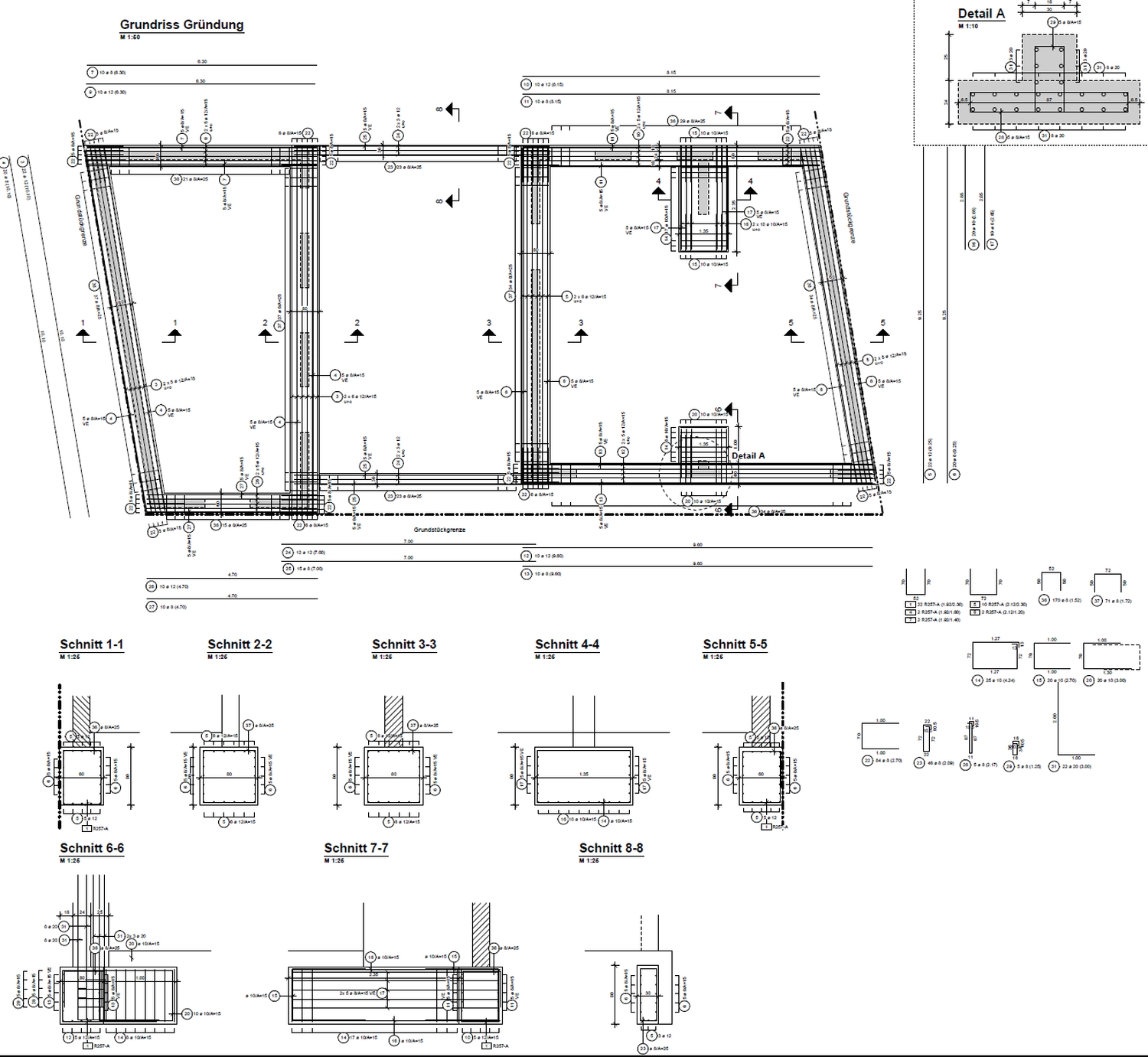
Neubau einer freistehenden Garage mit einer Grundfläche von 220 m². Das Gebäude wird in Parallelogramm‑förmiger Geometrie ausgeführt und erhält eine Stahlbetondecke sowie Stahlbetonstützen. Die Außenwände bestehen aus Mauerwerk. Die Nutzung dient als Garagen- und Abstellfläche.
Als Bauingenieur bei Hans-Jürgen Aster – Ingenieurbüro für Baustatik
Gründung des MZ-Ingenieurbüros für Bauwesen
Bachelor of Engineering an der Hochschule Karlsruhe
Als Bauingenieur bei Pache Heim Ingenieure
Gründung des MZ-Ingenieurbüros für Bauwesen
Bachelor of Engineering an der Hochschule Karlsruhe
Als Bauingenieur bei Hans-Jürgen Aster – Ingenieurbüro für Baustatik
Als Bauingenieur bei Pache Heim Ingenieure
Gründung des MZ-Ingenieurbüros für Bauwesen
Malmedystr. 3
81379 München